Das bestehende Feuerwehrhaus in Bernau wurde im Jahre 2002 eingeweiht. Obwohl das Gebäude nur knapp über 20 Jahre alt ist, zeigt sich bei den jährlichen Begehungen, dass im technischen Standard teils nachgerüstet werden muss. Es sind weitere Lagerflächen notwendig, zudem muss die Trennung zwischen Männern und Frauen hergestellt werden, sog. „Schwarz-Weiß-Trennung“ für Material und Schutzanzüge. Grundsätzlich sollten die Umkleiden sich nicht im selben Raum befinden wie die Fahrzeuge. Hier kann es im Einsatzfall zwischen den ausfahrenden Fahrzeugen und noch eintreffenden Einsatzkräften zu gefährlichen Situationen kommen. Dazu kommt, dass zwar die Anzahl der Einsätze beinahe jährlich ansteigt (derzeit für das Jahr 2024 bereits über 150 Einsätze), aber auch der Personalstand steigt. Dies bedingt natürlich auch einen Zuwachs an Umkleiden, für die derzeit kein Platz mehr vorhanden ist.
Da Bernau ein Standort wird für einen Wechsellader mit vier Abrollcontainern, werden weitere frostsichere Stellplätze für die Container benötigt. Das Wechselladerfahrzeug wird durch den Landkreis finanziert und erspart der Gemeinde das Auswechseln eines Fahrzeugs, das in den kommenden Jahren fällig geworden wäre. Bernau erhält unter anderem einen Wechselladercontainer mit Löschwasser und kann somit die Löschfähigkeit in einigen Außenbereichen sichern, die derzeit unterversorgt wären. Hier müssten sonst teure Leitungen gelegt werden, um diese Außenbereiche mit ausreichend Löschwasser zu versorgen. Dies kann künftig durch den Löschwassercontainer sichergestellt werden.
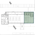
Das Büro Romstätter hat eine Machbarkeitsstudie erarbeitet, deren Varianten in der Gemeinderatssitzung vorgestellt wurden.
Variante 1 stellt eine Verlängerung der derzeit bestehenden Halle dar. Diese Variante weist aber nach den Aussagen des Planers, des Kommandanten und auch des Kreisbrandrates wenig Zukunftspotential auf, da Lager, WCs und Duschen fehlen. Zudem werde hier nur der momentane Bedarf abgedeckt. Ein nochmaliger Anbau an das Feuerwehrhaus zu einem späteren Zeitpunkt sei voraussichtlich nicht mehr möglich. Die Kosten werden geschätzt auf 1,54 Mio € für den Anbau.
Variante 2 weist am meisten Potential auf für die Zukunft und ist ein L-Bau. Hier finden sowohl alle Container des Wechselladers ihren Platz wie auch die Duschen und Umkleiden. Es können zudem mehr Umkleiden angelegt werden, um auch dem künftigen Wachstum der Anzahl ehrenamtlichen Feuerwehrler gerecht zu werden. Die geschätzten Kosten belaufen sich auf 2,23 Mio €, hier kann aber mit einer Förderung von 270.000€ gerechnet werden, da im Vergleich zur Variante 2b ein Stellplatz mehr entstehen kann.
Zudem wurde eine verkürzte L-Bau-Variante vorgestellt, die sich aber hinsichtlich der Kosten – bedingt durch die Förderung – kaum von der Variante 2 unterscheidet (=Variante 2b). Die geschätzten Kosten belaufen sich hier auf rund 2 Mio €. Da aber ein Stellplatz weniger als bei Variante 2 entsteht, fällt die Förderung um 74.000 € niedriger aus. So stellt Variante 2 langfristig die wirtschaftlichere Lösung dar.
Pro Stellplatz, der zusätzlich geschaffen wird, erhält die Gemeinde eine Förderung in Höhe von 60.600 € für die ersten beiden Stellplätze, für die beiden weiteren (Variante 2) erhält die Gemeinde eine Förderung von 74.800 €.
Weiter wurde der Bau einer alleinstehenden Kalthalle oder Halle geprüft. Eine Kalthalle kommt nicht in Frage, da die Container frostsicher gelagert werden müssen, da es sich um Löschwasser bzw. technische Ausrüstung handelt, die sich darin befindet. Eine einzelne Halle könnte nicht an die technischen Anlagen (Heizung, Lüftung, etc.) des bestehenden Feuerwehrhauses angeschlossen werden und wird somit als weniger wirtschaftlich beurteilt als ein Anbau.
Der Gemeinderat entschied sich mit einer Gegenstimme dafür, die Variante 2 weiterzuverfolgen. Es wird nun die Vergabe des Planungsbüros gestartet per Ausschreibung. Gebaut werden soll erst im Jahr 2026, da bis dahin die Großprojekte Haus des Gastes und Strandbad abgeschlossen und auch abgerechnet sind, so dass sowohl in Bauamt als auch in der Kämmerei wieder personelle und auch finanzielle Ressourcen vorhanden sind.
Bericht: Gemeinde Bernau – Bilder: Planungsbüro Romstätter










